X Home Valuations Property Search Sales Lettings Commercial Insurance Online Valuation Contact
bournes
ESTATE AGENTS
01264 300300
enquiries@bournes.biz

** PROPERTY ARCHIVED **
PURELY FOR CURIOSITY

For Sale in ,
OVER WALLOP,STOCKBRIDGE
1 APPLETON CLOSE  OVER WALLOP SO20 8PA
SHOWN AS IT WAS ON 23/04/2015 00:00:00   £ENQUIRE
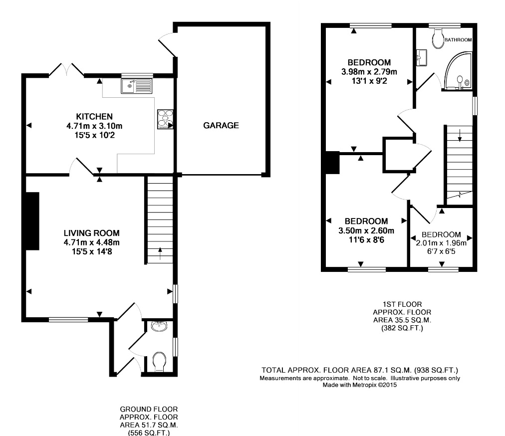
A 3 bedroom semi-detached house offered with a 50% shared ownership, The property is situated on the edge of the village of Over Wallop in a small development and has a kitchen breakfast room, living room, cloakroom, family bathroom, garden and garage.

Entrance Hall

Cloakroom
Obscure double glazed window to side,
Wash-hand basin, close coupled WC, heater.

Living Room
Double glazed window to front, brick built fire with log store to side, stairs to first floor, door to kitchen, heater.

Kitchen / Diner
Double glazed window to rear and patio door to garden, range of Shaker style beech effect base and wall units with contrasting roll top work surfaces, bottled gas hob with extractor hood over, inset one and a half bowl stainless steel sink tiled slash backs, five burner gas hob with extractor fan over, single fan oven, plumbing for dishwasher/washing machine, laminate flooring.

First Floor

Bedroom One
Double glazed window to front, heater.

Bedroom Two
Double glazed window to front, heater.

Bedroom Three
Double glazed window to rear.

Airing Cupboard
Airing cupboard with shelving, housing hot water tank and immersion heater.

Bathroom
Obscure double glazed window to rear, three piece suite comprising: quadrant shower cubicle, close coupled W.C, square edge wash-hand basin with mixer taps, vinyl flooring, wall heater, extractor fan.

OUTSIDE

Parking for two cars, single garage with power and plumbing, garden to rear and side.

Services
Electric heating, mains drainage (communal).
Local Amenities
Village shop, public house and church
Grateley Primary School in next village.

Financial Requirements

Property Value £220,000
Percentage Share 50%
Share Price £110,000
Monthly Rent £265.13
Monthly Service Charge £14.96
Household Income Required £36,000
Plus your mortgage charges on £110,000.