X Home Valuations Property Search Sales Lettings Commercial Insurance Online Valuation Contact
bournes
ESTATE AGENTS
01264 300300
enquiries@bournes.biz

** PROPERTY ARCHIVED **
PURELY FOR CURIOSITY

For Sale in UPPER CLATFORD,
ANDOVER,HAMPSHIRE
COPTHALL COTTAGE FOUNDRY ROAD UPPER CLATFORD ANDOVER SP11 7LR
SHOWN AS IT WAS ON 16/09/2016 00:00:00   £ENQUIRE
A well appointed and deceptively spacious semi detached cottage with an array of period features and a separate studio with formal gardens, enclosed patio, garage and off road parking.

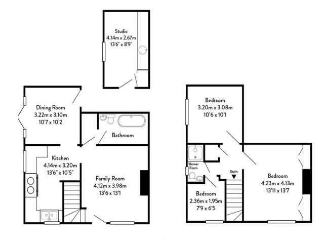
ACCOMMODATION
Front door to

Living room
A wonderfully cosy room with an array of features, sealed unit double glazed window to front, fireplace with wood burning stove inset onto wooden mantle with brick hearth, stairs to first floor with cupboard and
recess under, exposed ceiling beam, panelled walls, deep skirting boards and exposed floor boards,
radiator.

Kitchen
Double glazed windows to dual aspect, a bespoke fitted kitchen with solid base and wall mounted units
with contrasting solid wood work surfaces over, double bowl enamel sink with expandable mixer tap, built
in concealed dishwasher, Esse electric ‘Aga style’ cooker with chimney extractor over, wood effect flooring, space for fridge freezer down lighting.

Dining Room
Exposed floorboards, feature radiator, glass side panels and casement doors to courtyard, part glazed
stable door to rear courtyard.

Inner Lobby
Cloaks area, door to bathroom

Bathroom
Obscure window to rear, cast iron roll top bath with claw feet, wall mounted mixer tap with hand held
shower attachment, complimentary splash back tiling, pedestal wash hand basin, low level WC, tiled
flooring, feature exposed ceiling beams, electric under floor heating, radiator, down lighting.

First Floor
Landing

Access to loft, storage cupboard.

Bedroom One
Double glazed window to front, Victorian cast iron fireplace with marble hearth and wooden mantle,
two double built-in in wardrobes, radiator, telephone point, down lighting.

Bedroom Two
Double glazed window to side, radiator.

Bedroom Three
Double glazed window to front, radiator.

Shower Room
Double glazed obscure window to side, white suite comprising: Shower cubicle with inset thermostatic
shower, low level W.C., square basin with feature mixer tap, complimentary tiled walls, extractor fan,
exposed beam.

Outside

Garden
South-Westerly facing cottage garden with decked patio, paved seating area, irrigation system, laid to
lawn with mature flower and plants, further seating area, fruit trees, rear courtyard and covered log
store.

Studio
UPVC window, feature herringbone style brick flooring, basin with mixer tap and wooden work surface
over, space and plumbing for washing machine, space for further appliance, storage cupboard,
beamed and vaulted ceiling, boiler for central heating and domestic hot water, radiator.

Garage
Electric roller door, fitted with power and light.

Tenure: Freehold

Services:
Mains electric, water and gas

Local Authority
Test Valley Borough Council Band : 01264 368000